Le site d'annonces immobilières de votre région -
Vente - Location - Location vacances
13 décembre 2025
Recherche rapide


Les terrains à Villemeux Sur Eure

64 annonces disponibles aujourd'hui à 06:32 sur Dmaisons-centre.com
à Villemeux Sur Eure
64 annonces disponibles,
dernier ajout mercredi 23 novembre 2022
Créer une alerte e-mail
Envoyer à un ami
Imprimer les fiches
Trier par
décroissant
Page 0 sur ... 0
 
RECEVEZ TOUTES LES NOUVELLES ANNONCES
EN TEMPS RÉEL
3 ANNONCES se rapprochent de vos critères de recherche
Nous vous invitons à élargir votre recherche pour les consulter !

Terrain Villemeux Sur Eure
Vente
Villemeux Sur Eure (28)
Eure-et-Loir
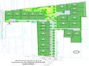
Villemeux sur eure, terrain viabilisé prêt à construire lot n° 16 pour 628m2 lotissement de 22 lots dans village tous commerces, ecoles et services, cabinets médicaux ce lotissement est à 10min n12, 50min paris, 10min gares autres lots disponible le prix indiqué comprend les honoraires de négociation qui se montent à 5.09% ttc du prix affiché, ces honoraires sont à la charge exclusive de l'acquéreur. dpe: 450, soit g, ges: 80, soit g. dominique catel, agent commercial immatriculé au rsac de chartres sous le numéro 3986 - a la lucarne de l'immobilier - votre contact : dominique catel - - réf. 69173 mandat : 69173 ref : 69173
Terrain Villemeux Sur Eure
Vente
Villemeux Sur Eure (28)
Eure-et-Loir
Villemeux sur eure, village de la vallée de l'eure lotissement viabilisé prêt à construire, lot n°7 pour 257m2. village avec ecoles commerces cabinets médicaux 10min n12 le prix indiqué comprend les honoraires de négociation qui se montent à 8.4% ttc du prix affiché, ces honoraires sont à la charge exclusive de l'acquéreur. dpe: 450, soit g, ges: 80, soit g. dominique catel, agent commercial immatriculé au rsac de chartres sous le numéro 3986 - a la lucarne de l'immobilier - votre contact : dominique catel - - réf. 69172 mandat : 69172 ref : 69172
Vente
Villemeux Sur Eure (28)
Eure-et-Loir
Terrain à bâtir de 567m2 non viabilisé mais réseaux au bout du terrain. centre ville de villemeux mais à l'écart de la route principale.village avec tous commerces à moins d'une heure de paris et 10 min n12.secteur calme et recherché. le prix indiqué comprend les honoraires de négociation qui se montent à 8.33% ttc du prix affiché, ces honoraires sont à la charge exclusive de l'acquéreur. dpe: 450, soit g, ges: 80, soit g. dominique catel, agent commercial immatriculé au rsac de chartres sous le numéro 3986 - a la lucarne de l'immobilier - votre contact : dominique catel - - réf. 61424 mandat : 61424 ref : 61424

VOTRE RECHERCHE
Annonces *
Biens *
1 sélection(s)
Localités *
Cliquer pour modifier la localité
Étendre à aux alentours
Critères optionnels
Prix
Surf. habitable
Terrain
Pièces
Chambres
Date d'annonce
RECEVEZ LES ANNONCES
EN TEMPS RÉEL
Retrouvez chaque jour dans votre boîte e-mail toutes les nouvelles annonces immobilières.
PUBLICITE