Le site d'annonces immobilières de votre région -
Vente - Location - Location vacances
05 décembre 2025
Recherche rapide


Ventes et achats d'appartements à Joue Les Tours

64 annonces disponibles aujourd'hui à 13:40 sur Dmaisons-centre.com
à Joue Les Tours
64 annonces disponibles,
dernier ajout mercredi 23 novembre 2022
Créer une alerte e-mail
Envoyer à un ami
Imprimer les fiches
Trier par
décroissant
Page 0 sur ... 0
 
RECEVEZ TOUTES LES NOUVELLES ANNONCES
EN TEMPS RÉEL
Aucune annonce ne se rapproche de vos critères de recherche
Nous vous invitons à élargir votre recherche pour les consulter !

Achat vente appartement Joue Les Tours
Joue Les Tours (37)
Indre-et-Loire
Quartier tranquille à joué-sud appartement t3 comprenant: séjour, cuisine, 2 chambres, entrée, salle de bains, placards, cave, à rafraîchir. proche école, collège, lycée. proche tram, bus et accès rocade 1 mn. présenté au prix de 62 700¤ (fai=10%, hfn) contact: ce bien fait partie d'une copropriété ne faisant pas l'objet d'une procédure. cette copropriété comprend 105 lots au total et sa quote part de charges annuelles s'élève à 2377 euros. le prix indiqué comprend les honoraires de négociation qui se montent à 10% ttc du prix affiché. dpe: 242, soit e, ges: 57, soit f. christian blanchard, agent commercial immatriculé au rsac de tours sous le numéro 5312 - a la lucarne de l'immobilier - votre contact : christian blanchard - - réf. 50380 mandat : 50380 ref : 50380
Achat vente appartement Joue Les Tours
Joue Les Tours (37)
Indre-et-Loire
Joué les tours, proche centre ville, à 2 mn futur tramway, appartement t4, très bonne exposition est-ouest traversant, clair et refait à neuf, comprenant grand salon-séjour de 32 m2, 2 chambres, bureau, salle d'eau, wc indépendant, nombreux placards, cave et séchoir en sous sol. - a la lucarne de l’immobilier - votre contact : christian blanchard - - réf. 41803 mandat : 41803 ref : 41803
Joue Les Tours (37)
Indre-et-Loire
A vendre appartement t4 balcon cave joue-les-tours fabrice gautrin vous propose au 1° étages sur 5 avec ascenseur proche école, collège, commerce ce quatre pièce de 76m², composé de trois chambres, séjour de 20m²exposé sud-ouest, salle d'eau, nombreux rangements, le tout en bonne état.stationnement en bas de la copropriété. prix souhaité:146000€ fai / 02 533 544 02 poste 8421 [email protected] http://www.tours.maxihome.net mandat : 42880 ref : 42880mx421
Joue Les Tours (37)
Indre-et-Loire
Votre appartement au coeur d'un nouveau quartier à joué-lès-tours à proximité immédiate du tramway (arrêt rotière) . appartement de conception contemporaine, aux volumes intérieurs optimisés, fonctionnels et lumineux. le logement est prolongé d'un balcon . le tramway, les commerces, les écoles, tout est à portée de main pour vous offrir une qualité de vie privilégiée au quotidien ! “ pour toutes informations complémentaires, prenez contact avec nous !m. christophe noirot ..... [email protected]................... http://www.la.fleche.maxihome.net surface habitable 76, 55m² surface balcon loggia terrasse : 7, 57m² prix annexes incluses 168 536, 25€ avec un pass foncier sinon 191 700, 00€ honoraires inclus étage : 2eme etage orientation : sud / est / nord blt : balcon m. christophe noirot / 02 533 544 02 poste 9017 [email protected] agent commercial indépendant du réseau national clairimmo maxihome n° rsac : 487898389 fci - ville du greffe : mandat : 07728n122 ref : 07728n122mx1017
Joue Les Tours (37)
Indre-et-Loire
Joue les tours, quartier 2 lions, à 10 min à pied de l'heure tranquille devenez propriétaire de ce t2 de 45 m² au 3° étage d'une résidence avec gardien et ascenseur. au calme, dans un cadre verdoyant, aménagez cet agréable appartement avec vue dominante et dégagée pour louer ou pour y vivre. a voir ! réseau immobilier capifrance - votre conseiller local caroline frantz - voir photos (réf. 175962) sur www.capifrance.fr mandat : 175962 ref : 34093187390
Joue Les Tours (37)
Indre-et-Loire
Joue les tours, appartement t2 bon état, idéalement situé dans quartier calme à deux pas du centre- ville, des commerces, transport en commun et futur tramway. ce bel appartement vous propose une belle pièce à vivre ainsi qu'une jolie cuisine équipée, une chambre, une salle d'eau. huisseries avec double vitrage récent. stationnement aisé. cave privative. idéal primo-accédant ou investisseur. a découvrir...sans tarder. négociable, réseau immobilier capifrance - votre conseiller local patrice bizet - voir photos (réf. 126817) sur www.capifrance.fr mandat : 126817 ref : 34093134651
Joue Les Tours (37)
Indre-et-Loire
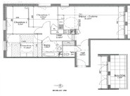
[ref. nic-37300-a-c11] a vendre 37300 joue les tours : frais de notaire réduits, possibilité investissement, bâtiment basse consommation. bénéficiez de toutes les commodités à proximité (écoles, mairie, supermarchés, commerces de première nécessité) et d'une facilité d'accès (autoroutes a10 et a85). vente : appartement type 3 de 64m², situé au 1er étage, avec terrasse de 15m². parking inclus. solucimmo neuf : ou solucimmo.net, financement 100% possible mandat : nic-37300-a-c11 ref : 4879310

VOTRE RECHERCHE
Annonces *
Biens *
1 sélection(s)
Localités *
Cliquer pour modifier la localité
Étendre à aux alentours
Critères optionnels
Prix
Surf. habitable
Terrain
Pièces
Chambres
Date d'annonce
RECEVEZ LES ANNONCES
EN TEMPS RÉEL
Retrouvez chaque jour dans votre boîte e-mail toutes les nouvelles annonces immobilières.
PUBLICITE